
- મોડલ: VK-SPAF
- માપવાની રીત: ઓગર માપવા અને ખોરાક આપવો
- વજન શ્રેણી: 50-500 ગ્રામ
- ચોકસાઈ: 2%
- ઝડપ: 10-30 બોટલ/મિનિટ
- વોલ્ટેજ: 220V (વૈવિધ્યપૂર્ણ)
- હૂપર: 25L
- ફિલિંગ નોઝલ: 10mm (15mm, 18mm, 20mm, 25mm માટે બીજું)
- પાવર: 1.2KW
- GN વજન: 230/200kgs
- કદ: 800×850×2000mm
આ પાઉડર ફિલિંગ મશીન સંપૂર્ણપણે સ્ટેનલેસ સ્ટીલથી બનેલું છે, ફિલિંગ સિસ્ટમ સર્વો-મોટર દ્વારા ચલાવવામાં આવે છે, અને તાઇવાનની જાળવણી-મુક્ત રીડ્યુસરનો ઉપયોગ આંદોલનકારી મોટર માટે થાય છે, ઉત્પાદન કેબિનેટ સંપૂર્ણપણે બંધ, ડેમ્પર એર-પ્રેશર કંટ્રોલ તરીકે નિર્દિષ્ટ કરવામાં આવે છે, સ્ટેનલેસથી બનેલું છે. સ્ટીલ અને કાચ. ધૂળ નિષ્કર્ષણ ઉપકરણ ફિલિંગ ટ્યુબના મુખમાં માઉન્ટ થયેલ છે, જે ટેબલની નીચે વેસ્ટ પ્રોડક્ટ ડ્રોઅર સાથે, ફરીથી વાપરી શકાય તેવા વર્કિંગ ટેબલની ઊંચાઈ એડજસ્ટેબલ માટે ડિઝાઇન કરવામાં આવ્યું છે.
બેબી ટેલ્કમ પાવડર ફિલિંગ મશીનની મુખ્ય લાક્ષણિકતાઓ સેમી ઓટોમેટિક


સ્ટેનલેસ સ્ટીલથી બનેલું: કાટરોધક રસાયણો પેક કરવા માટે યોગ્ય જીએમપી અથવા અન્ય ફૂડ સેનિટેશન સર્ટિફિકેશનની જરૂરિયાતને સંપૂર્ણપણે અનુકૂળ;
વધુ સારી સ્થિરતા અને ઉચ્ચ વજનની ચોકસાઇ ભરવા;
ફિલિંગ સિસ્ટમ સ્ટેપર મોટર, ઉચ્ચ ચોકસાઇ, ઉચ્ચ ટોર્ક, લાંબી કામગીરી જીવન અને આરપીએમ સેટેબલ દ્વારા ચલાવવામાં આવે છે;
તાઇવાન દ્વારા બનાવેલ જાળવણી-મુક્ત રીડ્યુસરનો ઉપયોગ આંદોલનકારી મોટર માટે થાય છે: નીચા અવાજનું સ્તર, લાંબી કામગીરી જીવન, જીવનકાળ માટે જાળવણી-મુક્ત;
કોઈપણ સમયે બદલી શકાય તેવી કાર્યકારી સ્થિતિ માટે રચાયેલ છે;
Max.10 વાનગીઓ પછીથી ઉપયોગ માટે સાચવી શકાય છે;
સંપર્ક સામગ્રી સ્ટીલ ખોરાક પ્રકાર સ્ટેનલેસ 304 છે;
ઉત્પાદન કેબિનેટ સંપૂર્ણપણે બંધ છે, ભીના હવા-દબાણને નિયંત્રિત કરે છે અને સ્ટેનલેસ સ્ટીલ સાથે કાચથી બનેલું છે, કેબિનેટમાં ઉત્પાદનની હિલચાલ એક નજરમાં સ્પષ્ટ છે કોઈ પાવડર લીક નથી, ધૂળ નિષ્કર્ષણ ઉપકરણ ફિલિંગ ટ્યુબના મોંમાં માઉન્ટ થયેલ છે જે છોડના સ્વચ્છ વાતાવરણ તરફ દોરી જાય છે;
એક્સેસરીઝ બદલવાની ચાટ, મશીન બહુવિધ ઉત્પાદનો માટે યોગ્ય છે, પછી ભલે તે સુપર ફાઇન પાવર અથવા મોટા અનાજ હોય.
ઔગર માપન ફીડિંગ પાવડર ફિલિંગ મશીનની વિશિષ્ટતા
| મોડલ | VK-SPAF |
| માપવાની રીત | ઓગર માપન અને ખોરાક |
| વજન શ્રેણી | 50-500 ગ્રામ |
| ચોકસાઈ | 2% |
| ઝડપ | 10-30 બોટલ/મિનિટ |
| વોલ્ટેજ | 220V (વૈવિધ્યપૂર્ણ) |
| હૂપર | 25 એલ |
| નોઝલ ભરવા | 10mm (15mm, 18mm, 20mm, 25mm માટે બીજું) |
| શક્તિ | 1.2KW |
| જીએન વજન | 230/200 કિગ્રા |
| કદ | 800×850×2000mm |
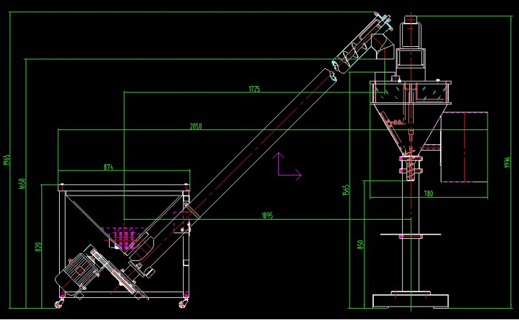
પાવડર ફિલિંગ મશીનનું ચિત્ર


વિગતો


એલિવેટર સ્ક્રુ ફીડિંગ મટિરિયલ્સ લોડિંગ અને ફીડર

સામગ્રી ફીડિંગ અને લોડિંગ માટે સ્થાપન
બે દિશા સ્વીચ; ફીડિંગ મટિરિયલ્સ અને નીચેના આઉટલેટમાંથી મટિરિયલ અનલોડ કરવા માટે અનુક્રમે ફોરવર્ડ/ રિવર્સલ રોટેશન.
રીડ્યુસરના શાફ્ટ-કપ્લીંગને અવરોધિત કરી શકાતું નથી. સ્થાપન પછી શાફ્ટ-કપ્લિંગ તાણયુક્ત અને લવચીક હોવું જોઈએ જેથી મોટરમાં ઓવરલોડિંગથી બળી ગયેલું નુકસાન થાય. ઇન્સ્ટોલેશન દરમિયાન ફ્લેંજ બોલ્ટને યોગ્ય રીતે ગોઠવી શકાય છે.
ઓગર પિનનો છેડો ક્યારેય પણ વધુ ચુસ્ત ન હોવો જોઈએ, જેથી વાંકા ઔગરને કારણે ફરતી ઓગર પાઇપની દિવાલને સ્પર્શે. કૃપા કરીને પિનને ઠીક કરવા માટે તેને ઠીક કરવા માટે અખરોટને ચુસ્તપણે સ્ક્રૂ કરો. દર વખતે સફાઈ અને પુનઃસ્થાપન માટે ઓગરને બહાર કાઢવામાં આવે ત્યારે આ બિંદુને ધ્યાનમાં લેવું જોઈએ.
સીરિઝ ઇન્ડક્શન દ્વારા એલિવેટરનું વોલ્યુમ અને ઊંચાઈ પેકિંગ મશીન સાથે સંકલિત કરી શકાય છે. ટાંકીમાં સામગ્રી વિના લિફ્ટમાંથી કોઈ ફીડિંગ સામગ્રી નથી.
એલિવેટર સંયુક્ત-પાઉડર ફિલિંગ મશીન સાથે કામ કરે છે, આપમેળે ખોરાક લે છે અને બંધ થાય છે.
એલિવેટર માટે ટેકનિક પેરામીટર

| વોલ્યુમ ટ્રાન્સફર | 1M3/કલાક (ફિલિંગ મશીન સાથે સંકલિત) |
| હૂપર | 100L |
| એલિવેટીંગ ઊંચાઈ | 2000 મીમી |
| મોટર પાવર | 1.5KW |
| પાવર સપ્લાય | 380V/50-60Hz |
| હોપર અને જમીન વચ્ચેની ઊંચાઈ | 800-900 મીમી |
| મોટર બ્રાન્ડ | જુલી |
| હૂપર સામગ્રી | SS304, જાડાઈ 1.50mm |
| ખોરાક સામગ્રીના પરિવહન માટે પાઇપ | SS304, વ્યાસ: 103mm, જાડાઈ: 3.00mm |
| ઓગર | SS304, જાડાઈ 3.00mm |
| શાફ્ટ | SS304, વ્યાસ 35mm |
| વજન | 150KG |
| કદ | 1900*880*2100mm (વૈવિધ્યપૂર્ણ) |
ગેરંટી: તમામ મશીન માટે, તે ગેરંટી માટે 1 વર્ષનો દાવો કરે છે. (વોરંટીમાંથી બાકાત છે અકસ્માતો, દુરુપયોગ, ખોટો ઉપયોગ, સંગ્રહને નુકસાન, બેદરકારી, અથવા સાધનસામગ્રી અથવા તેના ઘટકોમાં ફેરફારને કારણે સમસ્યાઓ. તેમજ સરળ તૂટેલા સ્પેર પાર્ટ ગેરંટીમાં શામેલ નથી)
ઇન્સ્ટોલેશન: મશીન તમારી ફેક્ટરીમાં આવે તે પછી, જો તમને જરૂર હોય, તો અમારો ટેકનિશિયન મશીન ઇન્સ્ટોલ કરવા અને તેનું પરીક્ષણ કરવા માટે તમારી જગ્યાએ જશે અને તમારા કાર્યકરને મશીન ચલાવવાની તાલીમ પણ આપશે (ટ્રેનનો સમય તમારા કામદાર પર નિર્ભર છે). ખર્ચ (એર ટિકિટ, ફૂડ, હોટેલ, તમારા દેશ પરની મુસાફરીની ફી) તમારા ખાતામાં હોવા જોઈએ અને તમારે ટેકનિશિયન USd150 પ્રતિ દિવસ માટે ચૂકવણી કરવાની જરૂર છે. તેમજ તમે અમારી ફેક્ટરીમાં જઈને ટ્રેનિંગ કરી શકો છો.
સેવા પછી: જો તમને મશીન પર સમસ્યા આવે છે, તો અમારા ટેકનિશિયન શક્ય તેટલી વહેલી તકે મશીનને ઠીક કરવા માટે તમારા સ્થાને જશે. ખર્ચ તમારા ખાતામાં હોવો જોઈએ (ઉપર મુજબ).









